We are a small business based in North London and strive to always provide a fast, professional and efficient service delivering quality work at an affordable cost.
We work with furniture and fit-out companies, office interiors, project managers and designers, as well as directly with end-users.
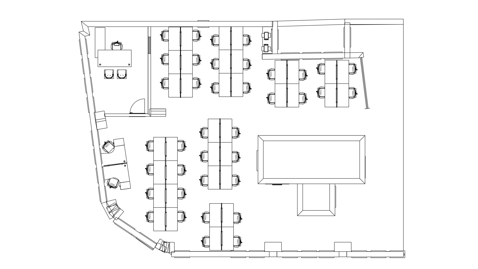
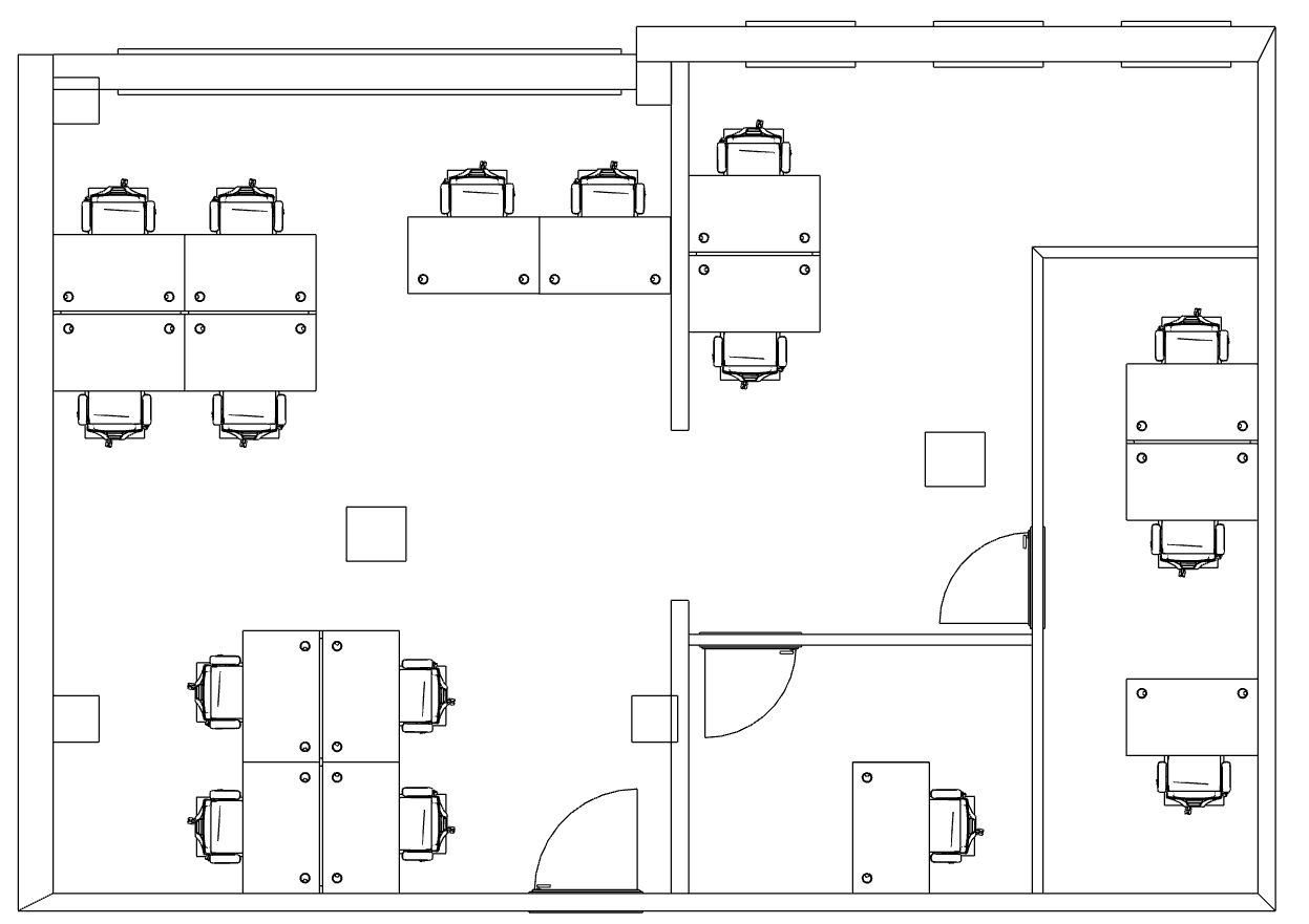
We can draw accurate floor plans from something as simple as a sketch
Our 3D renders provide the best of both worlds, accuracy and imagination
Don't have the dimensions? Don't worry! We can visit site and record them
We offer a 1 day service for times when speed as well as quality is a necessity
We manage the installation, ensuring all plans are followed for a smooth and error-free install
We create accurate 3D Cad blocks for any type of furniture and bespoke items
* Dependant on current workload and the size of the floorplan required.
We take pride in the level of service we offer our customers, doing our utmost to ensure complete satisfaction every time.
We provide free minor revisions on all work as well as a 1 day service* for when you need that fast turn around.